ÚvodNábytekDvířkaInteriérové dveřeInteriérové dveře Naturel Aura pravé 60 cm ořech karamelový AURA2OK60P
Interiérové dveře Naturel Aura pravé 60 cm ořech karamelový AURA2OK60P

Interiérové dveře Naturel Aura pravé 60 cm ořech karamelový AURA2OK60P

Konstrukce dveří:Křídlo má pevnou a odolnou rámovou konstrukci z MDF. Oproti deskovým dveřím s výplní z voštiny mají tyto dveře lepší zvukově- izolační vlastnosti. Sklo mezi jednotlivými panely je...
Detailní popis
Sklademu vás od 18.12. do 3.1.
4 990 Kč s DPH4 124 Kč bez DPH
Přidat do košíku

Koupi získáte 250 Kč do věrnostního programu.

Dotaz na produkt Na splátky ještě dnes
Kód produktu: 3990899   Značka: Naturel

Podrobný popis

Konstrukce dveří:

Křídlo má pevnou a odolnou rámovou konstrukci z MDF. Oproti deskovým dveřím s výplní z voštiny mají tyto dveře lepší zvukově- izolační vlastnosti. Sklo mezi jednotlivými panely je standardně bílé mléčné.

Povrch dveří:

Odolný povrch z PP (3D -struktura) má na dotek strukturovaný povrch (výjimka hladká bíla mat) a věrohodně imituje texturu dřeva. Povrch 3D je odolný hladká povrch věrohodně imitující dýhu.    

Balení obsahuje:

dveřní křídlo, panty 3ks (případně dva bezfalcových) zámek dle typu - standardně dodáváme WC zámek ve dveřích „60“ a v ostatních rozměrech zámek  na interiérový klíč ( BB)

Balení neobsahuje:

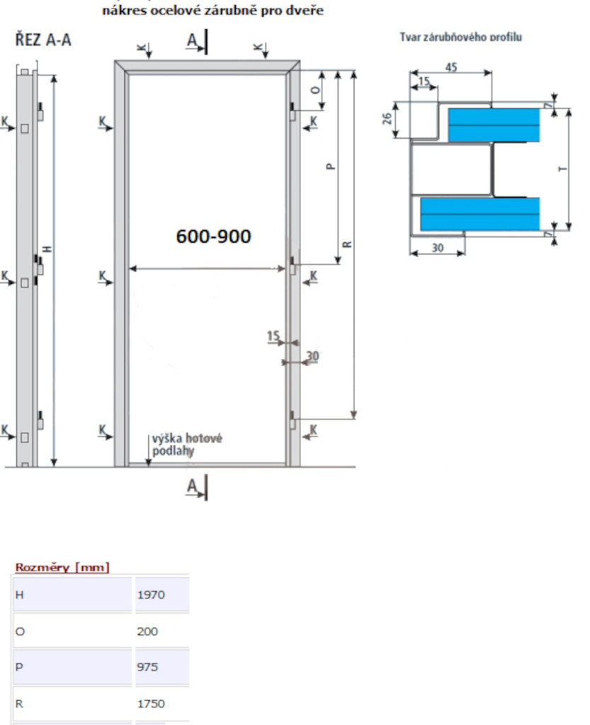
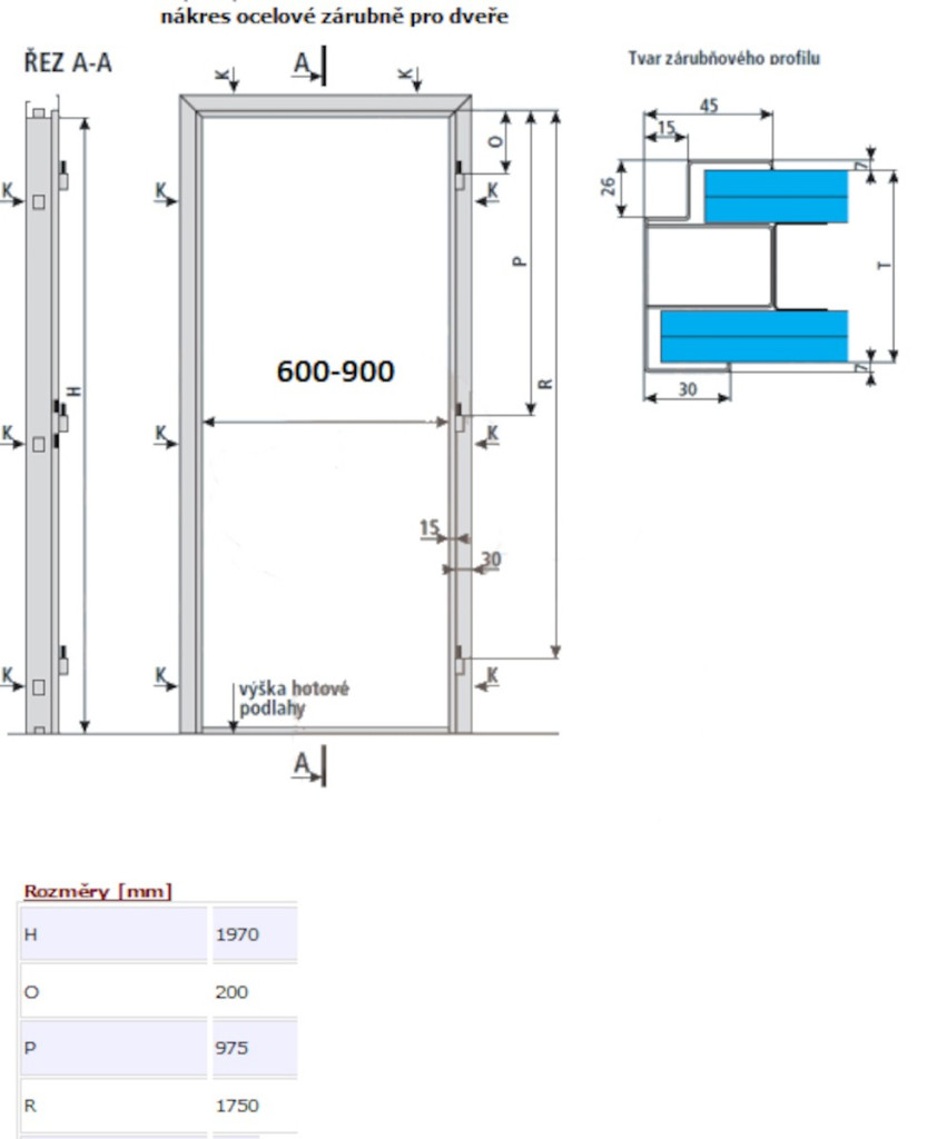
Zárubeň, kliku

Ostatní:   

další varianty v jiné konfiguraci na dotaz, falcové / bezfalcové , dvoukřídlé, atd.  

Proč koupit dveře Naturel v SIKO:

  • Široký sortiment dveří a zárubní skladem = rychlá dodávka
  • Rám z masivního dřeva u deskových dveří
  • Kvalitní a pevná voštinová výplň nebo děrovaná dřevotříska
  • Dřevěná výztuha pod klikou pro kvalitní montáž kování
  • Kvalitní a odolné fólie již u základních modelů
  • Kvalitní balení všech výrobků zabraňující poškození při manipulaci
  • Široký sortiment doplňků
  • 12 % DPH v případě

 


PARAMETRY:
Balení: 1 ks
Hmotnost balení: 33  kg
Druh výrobku: interiérové dveře 
Barva popisná: ořech karamelový 
Barva základní: dřevodekor 
Orientace: pravé 
Povrch: 3d struktura 
Typ: otočné 
Výška: 197  cm
Hloubka: 4  cm
Výplň dveří: rám MDF 
Provedení dveří: falcové 
Dekor dveří: ořech karamelový 
Šířka dveří: 60 
Série: Aura 
Značka: Naturel 
Záruční lhůta: 2 roky 

Parametry

NázevHodnota
Určení:Interiérové dveře

Recenze

Buďte první a napište hodnocení

Přidat hodnocení

Proč nakupovat u nás

Nejširší výběr nábytku na internetu

Oblíbené kousky skladem

Přes 4000 spokojených referencí

Věrnostní slevy

Nákup na splátky

Nejlepší poměr kvality a ceny

Široká možnost dopravy a plateb

Velký výběr zboží

Profesionální poradenství