ÚvodNábytekDvířkaInteriérové dveřeInteriérové dveře Naturel Aura pravé 90 cm jilm AURA2J90P
Interiérové dveře Naturel Aura pravé 90 cm jilm AURA2J90P

Interiérové dveře Naturel Aura pravé 90 cm jilm AURA2J90P

Konstrukce dveří:Křídlo má pevnou a odolnou rámovou konstrukci z MDF. Oproti deskovým dveřím s výplní z voštiny mají tyto dveře lepší zvukově- izolační vlastnosti. Sklo mezi jednotlivými panely je...
Detailní popis
Sklademu vás od 17.12. do 2.1.
4 990 Kč s DPH4 124 Kč bez DPH
Přidat do košíku

Koupi získáte 250 Kč do věrnostního programu.

Dotaz na produkt Na splátky ještě dnes
Kód produktu: 3988445   Značka: Naturel

Podrobný popis

Konstrukce dveří:

Křídlo má pevnou a odolnou rámovou konstrukci z MDF. Oproti deskovým dveřím s výplní z voštiny mají tyto dveře lepší zvukově- izolační vlastnosti. Sklo mezi jednotlivými panely je standardně bílé mléčné.

Povrch dveří:

Odolný povrch z PP (3D -struktura) má na dotek strukturovaný povrch (výjimka hladká bíla mat) a věrohodně imituje texturu dřeva. Povrch 3D je odolný hladká povrch věrohodně imitující dýhu.    

Balení obsahuje:

dveřní křídlo, panty 3ks (případně dva bezfalcových) zámek dle typu - standardně dodáváme WC zámek ve dveřích „60“ a v ostatních rozměrech zámek  na interiérový klíč ( BB)

Balení neobsahuje:

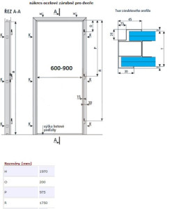
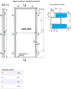
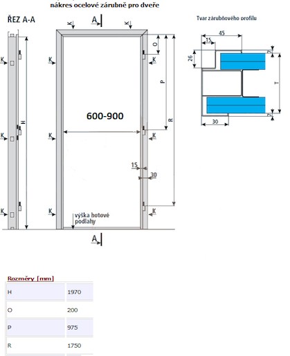
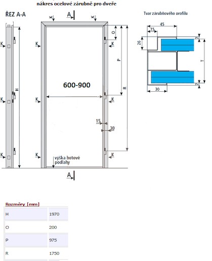
Zárubeň, kliku

Ostatní:   

další varianty v jiné konfiguraci na dotaz, falcové / bezfalcové , dvoukřídlé, atd.  

Proč koupit dveře Naturel v SIKO:

  • Široký sortiment dveří a zárubní skladem = rychlá dodávka
  • Rám z masivního dřeva u deskových dveří
  • Kvalitní a pevná voštinová výplň nebo děrovaná dřevotříska
  • Dřevěná výztuha pod klikou pro kvalitní montáž kování
  • Kvalitní a odolné fólie již u základních modelů
  • Kvalitní balení všech výrobků zabraňující poškození při manipulaci
  • Široký sortiment doplňků
  • 12 % DPH v případě

 


PARAMETRY:
Balení: 1 ks
Hmotnost balení: 44  kg
Druh výrobku: interiérové dveře 
Barva popisná: jilm 
Barva základní: dřevodekor 
Orientace: pravé 
Povrch: 3D 
Typ: otočné 
Výška: 197  cm
Hloubka: 4  cm
Výplň dveří: rám MDF 
Provedení dveří: falcové 
Dekor dveří: jilm 
Šířka dveří: 90 
Série: Aura 
Značka: Naturel 
Záruční lhůta: 2 roky 

Parametry

NázevHodnota
Určení:Interiérové dveře

Recenze

Buďte první a napište hodnocení

Přidat hodnocení

Proč nakupovat u nás

Nejširší výběr nábytku na internetu

Oblíbené kousky skladem

Přes 4000 spokojených referencí

Věrnostní slevy

Nákup na splátky

Nejlepší poměr kvality a ceny

Široká možnost dopravy a plateb

Velký výběr zboží

Profesionální poradenství