ÚvodZahradaZahradní přístřeškyPergolyROJA Bioklimatická pergola INTRO DUO 6x4 m, hliník - do stěny
ROJA Bioklimatická pergola INTRO DUO 6x4 m, hliník - do stěny

ROJA Bioklimatická pergola INTRO DUO 6x4 m, hliník - do stěny

Doručení zdarma
Prémiová zahradní hliníková bioklimatická pergola instalovaná do stěny, o rozměrech 6x4 metry představuje ideální způsob zastřešení Vašeho venkovního posezení. Velmi pevná a stabilní konstrukce v...
Detailní popis
Sklademu vás od 19.4. do 21.4.
84 833 Kč s DPH70 110 Kč bez DPH
Přidat do košíku

Koupi získáte 4 242 Kč do věrnostního programu.

Dotaz na produkt Na splátky ještě dnes
Kód produktu: 4207108  

Podrobný popis

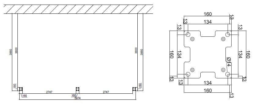
Prémiová zahradní hliníková bioklimatická pergola instalovaná do stěny, o rozměrech 6x4 metry představuje ideální způsob zastřešení Vašeho venkovního posezení. Velmi pevná a stabilní konstrukce v antracitové barvě RAL 7016, v matné povrchové úpravě se hodí do každého prostoru. Pergola je vyrobena z vysoce kvalitního hliníku, který je ošetřen práškovou barvou, což zaručuje odolnost vůči povětrnostním vlivům. Lamely jsou rozděleny na 2 zónya každou tuto část je možné ovládat zvlášť. 50 nastavitelných otočných lamel Vás ochrání nejen před sluncem, ale i před deštěm. Lamely lze otáčet od 0°, kdy docílíte úplně uzavřené střechy až do 135°, díky čemuž získáte skvělou mobilitu a možnost zastínit slunce z jakékoliv strany. Lamely lze ovládat jednoduše manuálně pomocí kličky. Ta je navržena tak, abyste lamely mohli snadno otočit do požadované polohy a aby při otáčení lamel nedocházelo k poškrábání konstrukce pergoly. Zároveň je klička na konstrukci umístěna tak, aby při doplnění pergoly o zástěny či panely nebránila ve snadné manipulaci s těmito doplňky. Kličku můžete jednoduše sundat. Ke svodu vody dochází unikátním drenážním systémem přímo uvnitř konstrukce. Lamely jsou schopné odvést opravdu velké množství vody až 17 l/m2 za hodinu.V zimních měsících je zapotřebí ponechat lamely ve svislé pozici. I přesto jsou lamely schopné unést 30-40 centimetrovou vrstvu sněhu, což představuje zátěž přibližně 50 kg/m2. Toto zatížení však nemůže být dlouhodobé. Pergolu lze doplnit o přední zástěny. V nabídce máme třímetrové zástěny s hliníkovou konstrukcí a výplní z textilenu, které poskytnou ochranu před větrem a zároveň vytvoří příjemný stín. Pergolu je také možné doplnit o stínicí panely s fixními či sklápěcími horizontálními lamelami nebo stínící stěnou vertikálně sklápěcí nebo posuvnou zástěnou pro dodatečné soukromí a zastínění. Díky skvělým vlastnostem, detailnímu zpracování a modernímu designu bioklimatické pergoly využijete venkovní posezení mnohem častěji. Robustní sloupek má rozměry 116x116 mm, při instalaci je zapotřebí počítat s patkou sloupku o rozměrech 160x160 mm. Patka je z 8 mm silné oceli a je navíc zakryta hliníkovým krytem (165x165 mm) s integrovaným drenážním systémem. Vyvýšený hliníkový profil s přidanou horní lištou ukrývá lamely tak, že z bočního pohledu nejsou viditelné a jsou v jedné linii s profilem. Součástí je pevný středový nosník, do kterého se nemusíte bát instalovat například osvětlení. S bioklimatickou pergolou si můžete užívat maximum slunečních paprsků, zároveň se můžete proti těmto paprskům i chránit správným nastavením lamel. Pergola též umožňuje snadnou ventilaci prostoru a naopak dokonalý přístřešek v případě deště. INSTALACE DO STĚNY Při instalaci částí, které se montují přímo do stěny, dejte prosím pozor na způsob použití šroubů s hmoždinkami, kdy obě části (jak hmoždinka, tak samotný šroub) procházejí skrz konstrukční díl. HLAVNÍ VÝHODY 50 hliníkových lamel rozdělená střešní část na 2 zóny flexibilnější lamely s úhlem otočení od 0° do 135° vyvýšená horní lišta hliníkového profilu - lamely nejsou vidět ani při otáčení integrovaný drenážní systém celohliníková konstrukce - silný středový nosník nejsou viditelné spojovací prvky, šrouby - hladká konstrukce ROZMĚRY PERGOLY

|


šířka výrobku: 600 cm

hloubka výrobku: 400 cm

výška výrobku: 255 cm

hmotnost celkem: 249,5 kg

konstrukce (profily, sloupky, lamely): hliník

barva konstrukce: antracit RAL 7016

barva lamel: antracit RAL 7016

rozměr balení: 6 kartonů (323,5x38,5x25cm - 43,5kg, 389,5x51x21,5cm - 74kg, 291,5x24x21cm - 32,5kg, 291,5x24x25cm - 32,5kg, 291,5x24x25cm - 33,5kg, 291,5x24x25cm - 33,5kg)

materiál balení: karton

odolnost proti dešti: ano

rozměr sloupku a tloušťka: 116x116x1,5 mm

rozměr hliníkového profilu a tloušťka: 195x75x1,4 mm

rozměr lamel: 166x34x1,2 mm

ovládání: manuální

zastavěná plocha: 24 m2

nosnost: 50 kg/m2 (30-40 cm sněhu)

Parametry

NázevHodnota
Šířka [cm]:600
Hloubka výrobku:400 cm
Výška [cm]:255
Dodavatel - Rojaplast - Barva konstrukce:antracit RAL 7016
Materiál balení:karton
Odolnost proti dešti:ano
Nosnost:50 kg/m2 (30-40 cm sněhu)

Recenze

Buďte první a napište hodnocení

Přidat hodnocení

Související produkty

ROJA BRUCE F pergola - TRANSPARENTNÍ polykarbonát

Doručení zdarma
20 285 Kč s DPH16 765 Kč bez DPH
Sklademu vás od 19.4. do 21.4.

ROJA BRUCE H pergola - TRANSPARENTNÍ polykarbonát

Doručení zdarma
26 045 Kč s DPH21 525 Kč bez DPH
Sklademu vás od 19.4. do 21.4.

ROJA BRUCE J pergola - TRANSPARENTNÍ polykarbonát

Doručení zdarma
27 906 Kč s DPH23 063 Kč bez DPH
Sklademu vás od 19.4. do 21.4.

ROJA BRUCE F pergola - ŠEDÝ polykarbonát

Doručení zdarma
20 299 Kč s DPH16 776 Kč bez DPH
Sklademu vás od 19.4. do 21.4.

ROJA BRUCE J pergola - ŠEDÝ polykarbonát

Doručení zdarma
27 906 Kč s DPH23 063 Kč bez DPH
Sklademu vás od 19.4. do 21.4.

ROJA BRUCE H pergola - ŠEDÝ polykarbonát

Doručení zdarma
26 045 Kč s DPH21 525 Kč bez DPH
Sklademu vás od 19.4. do 21.4.

Proč nakupovat u nás

Nejširší výběr nábytku na internetu

Oblíbené kousky skladem

Přes 4000 spokojených referencí

Věrnostní slevy

Nákup na splátky

Nejlepší poměr kvality a ceny

Široká možnost dopravy a plateb

Velký výběr zboží

Profesionální poradenství